︎
richard + schoeller
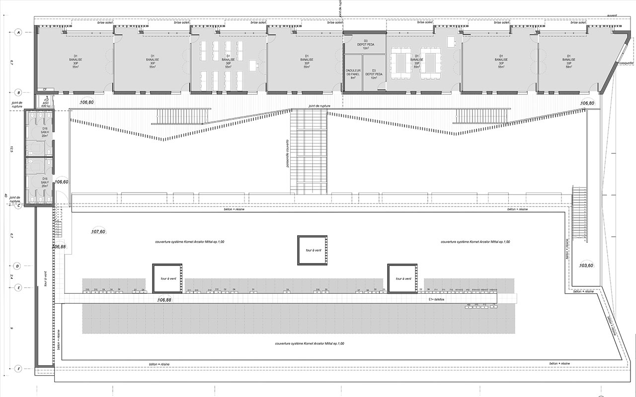
school 4- Djibouti - lycée Kessel
TEXT
projets
team_book
contact
news
house
urban grand paris