︎
richard + schoeller
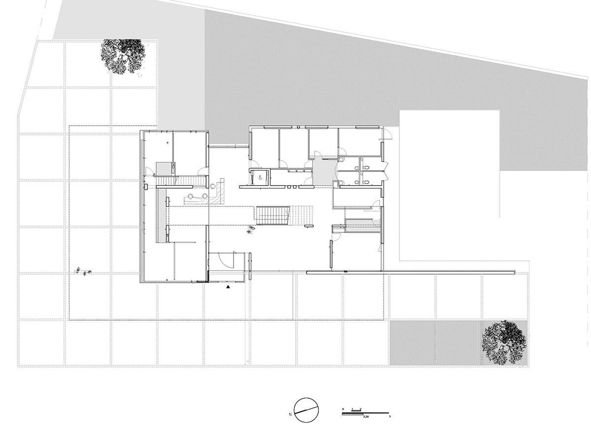
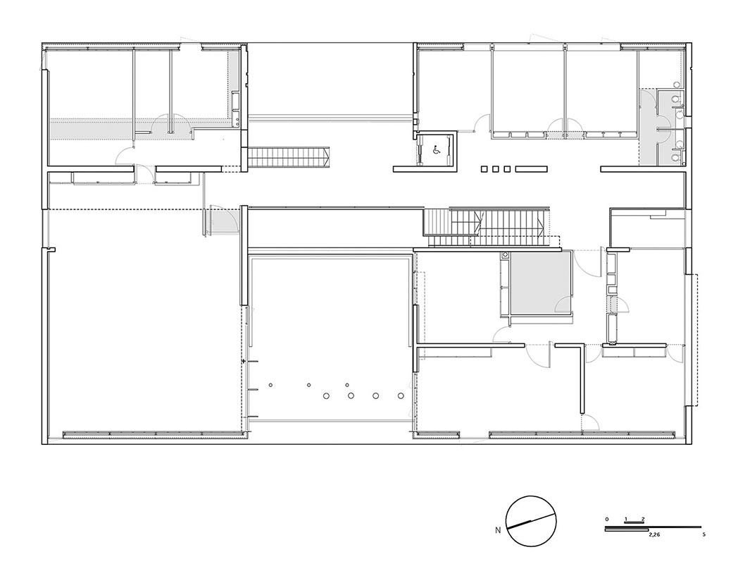
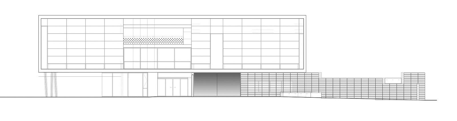
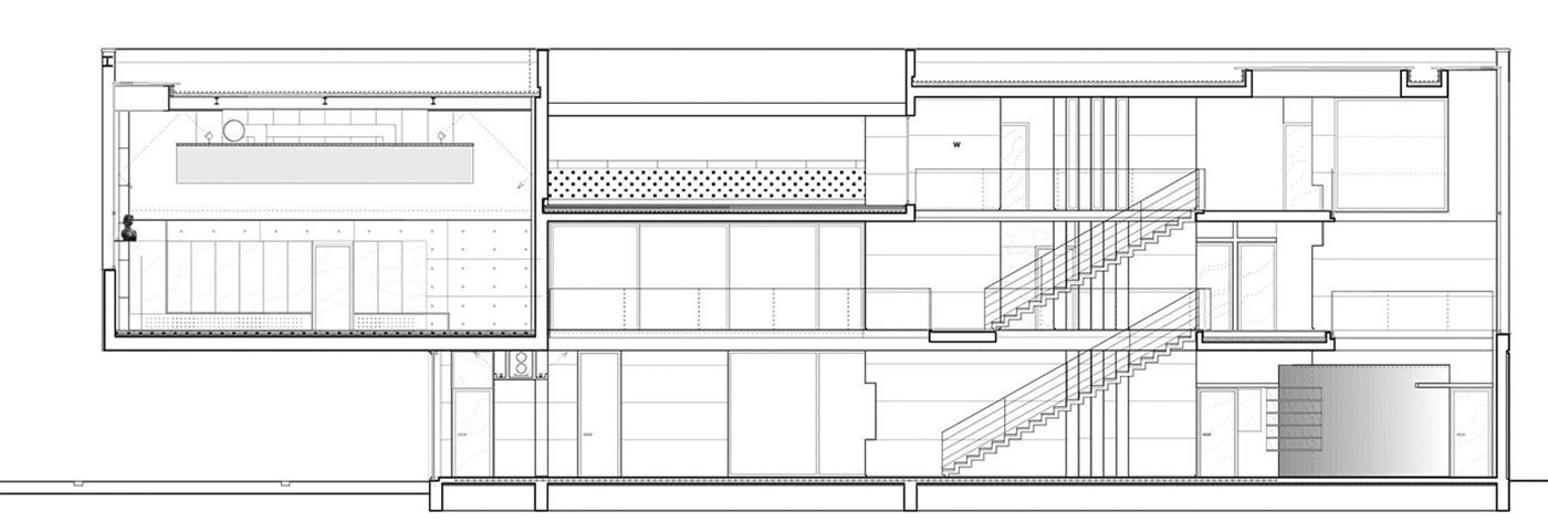
office 3 - Hotel de Ville -
TEXT
projets
team_book
contact
news
house
urban grand paris