︎
richard + schoeller
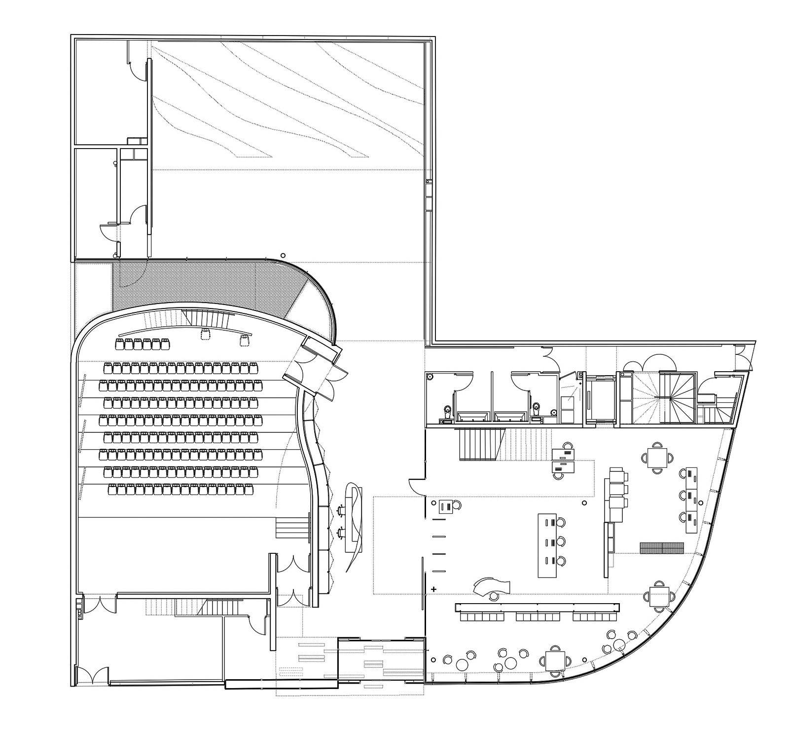
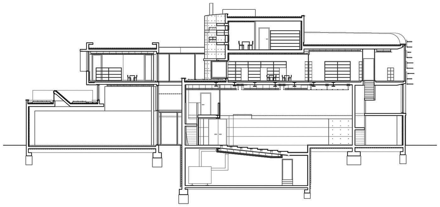
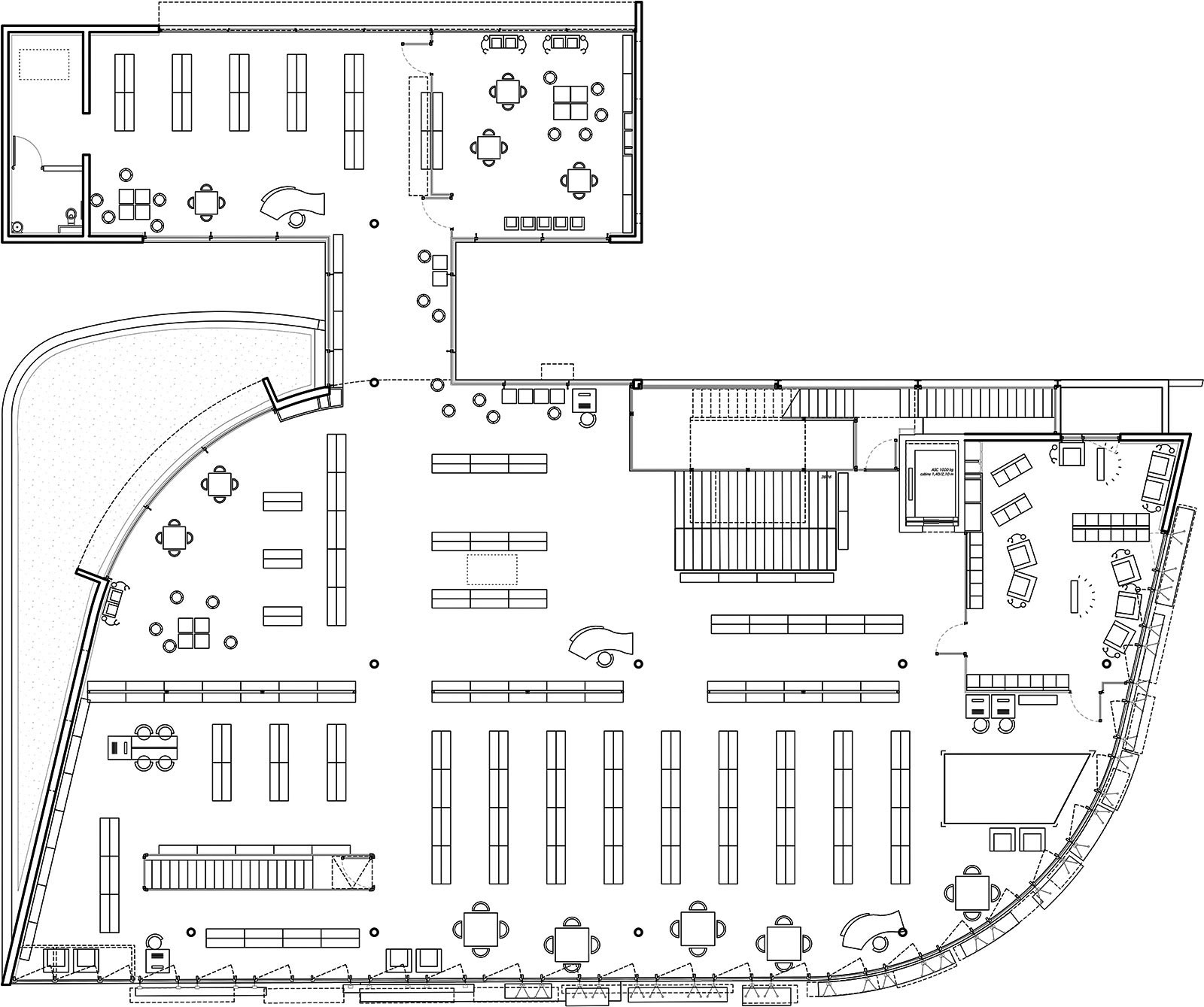
culture 2 - Mediatheque
TEXT
projets
team_book
contact
news
house
urban grand paris