︎
richard + schoeller
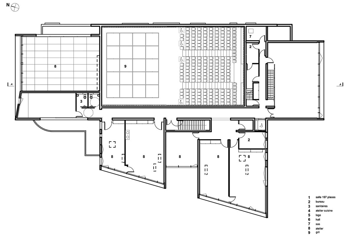
culture 1 - Sedan
TEXT
projets
team_book
contact
news
house
urban grand paris